- 
                                                4
- 
                                                4
- 
                                                2
- 
                                            225m2
- 
                                            9.0m
- 
                                        BAL Rating: LowBushfire Attack Level (BAL) measures the potential exposure of your home to a bushfire attack. Depending on the rating, there may be additional building requirements for your home.
- 
                                        Available
Overview
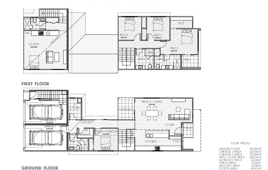
Yarrum Designer Homes present to you this 4-bedroom 2-bathroom two-storey townhouse with attached single garage and additional studio complete with bathroom & kitchenette, single garage and private access.
As a local business, Yarrum Designer Homes has been building quality homes in the Hunter Valley & Newcastle for more than 17 years. Yarrum Designer Homes has been involved with Huntlee from its planning stages, more than 10 years ago. The company has been at the forefront of designing and building small lot and urban houses since the inception of Huntlee.
Set on a 225sqm block in the Huntlee Urban Series and within a 5-minute stroll to the ever-growing Huntlee shopping precinct including Coles Huntlee with 11 specialty stores, cafes, gym, the Huntlee Tavern and Aldi currently under construction with many more on the way.
The Hunter Valleys newest town is on the fringes of the world-renowned Hunter Valley vineyards and is located 5 minutes from the Hunter Expressway, Newcastle (45 minutes) and Sydney (90 minutes) making it easily accessible.
Features of this home include but are not limited to:
• 6.6kW solar panels
• 7-star BASIX compliance
• Driveway to street kerb
• Landscaping to front and rear
• Fisher and Paykel appliances
• Stone benchtops & soft drawers to kitchen
• Reverse cycle ducted air conditioning
• Three coat paint system to walls and timberwork
• LED lighting throughout and TV ariel
• Tiling to outdoor areas
• Quality internal floor coverings
• Meetings with our interior designer to select your colors and inclusions
For further information, please contact Ben Justin at the Huntlee Sales Office on 0400 500 114 or bjustin@lwpproperty.com.au to assist you further in making a Yarrum Designer Home yours.
The information provided in this advertisement is for general informational purposes only. All details, including but not limited to pricing, availability, floor plans, and specifications, are subject to change without notice. The images and illustrations are artist impressions and are indicative only. They may not accurately represent the final product.
Prospective buyers should make their own inquiries and obtain independent advice before proceeding with any purchase. The developer and its agents do not warrant the accuracy, completeness, or reliability of the information provided and will not be liable for any loss or damage arising from reliance on this information.
All purchases are subject to contract terms and conditions. Any incentives or promotions are subject to availability and may be withdrawn or altered at any time.
What's nearby
Enquire today
 
                                        Huntlee - the Hunter's newest town
Nestled amongst the natural beauty of the Hunter Valley wine region, Huntlee is a new town offering the perfect mix of Hunter Valley charm, sustainable living and urban convenience.
With a vibrant town centre featuring parkland, supermarket, cafés, shops, schools and more, you and your family will enjoy a walkable lifestyle close to everything you need.
Plus, you’ll be just minutes from the renowned wineries of the Hunter Valley, 45 minutes from the beautiful beaches of Newcastle and 90 minutes from the bright lights of Sydney.
Caphilly, Huntlee's town centre newest land release is selling fast.
 
                                         
                                                         
                                                         
                                                         
                                                         
                                        